子育ても家事も、ちゃんとラクな家
会津若松市

子育ても家事も、ちゃんとラクな家

白と木目が調和するナチュラルな外観と、光あふれる開放的なLDKが魅力。畳スペースが暮らしにゆとりを生み、キッチンからは家族を見守りながら家事ができる安心の設計に。洗面とファミリークローゼットをつなぐ動線で身支度もスムーズに整います。毎日の暮らしを心地よく支える、やさしさと機能性を兼ね備えた一棟です。

会津若松市一箕町大字八幡
面積(坪数)
107.23m²(32.37坪)

一箕町モデルハウス

外観

白と木目を組み合わせた外観は、やさしさと上品さを感じられるナチュラルなデザイン。軒天と袖壁に木目を取り入れることで、シンプルな中にも奥行きとつながりを演出し、ほどよくスタイリッシュな印象に仕上げています。明るい色合いが街並みにも自然に馴染み、毎日帰るのが楽しみになる住まいです。

LDK

大きな開口からたっぷりと光が差し込むLDKは、家族が自然と集まる明るく開放的な空間。リビングに隣接した畳スペースが視覚的な広がりを生み、実際の広さ以上にゆとりを感じられます。お子さまの遊び場や、家事の合間のひと休みスペースとしても活躍し、家族それぞれの時間をやさしく包み込む心地よい場所となっています。

キッチン

キッチンはリビング全体を見渡せる配置で、料理をしながらでも家族との会話が自然と生まれる設計。ダイニングとの距離も近く、配膳や片付けもスムーズに行えます。また、洗面スペースと隣接していることで、料理と洗濯を同時にこなせる“ながら家事”が可能に。日々の家事負担を軽減し、ゆとりある時間を生み出します。

洗面スペース

幅広のカウンターを採用した洗面スペースは、家族が並んで使えるゆとりのある設計。朝の忙しい時間帯でも混み合うことなく、スムーズに身支度が整います。シンプルで清潔感のあるデザインは、毎日使う場所だからこそストレスなく快適に。機能性と使いやすさをしっかりと考えた空間です。

ファミリークローゼット

1階に設けたファミリークローゼットは、家族全員の衣類をまとめて収納できる便利な空間。洗面スペースと隣接しているため、朝の身支度や帰宅後の着替えもスムーズに行えます。「洗う→干す→しまう」の流れも自然につながり、家事効率を高めてくれるのも魅力。日々の暮らしをより快適にしてくれる工夫が詰まっています。

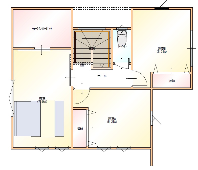
FLOOR PLAN

間取り

POINT

ポイント

MAP

アクセスマップ

来場予約をする

モデルハウスの来場予約をしたい方は、
下記の項目を入力し「送信」をクリックしてください。
担当者より順次回答いたします。
*は必須入力項目です

    お名前必須
    ふりがな必須
    ご住所
    電話番号必須
    メールアドレス必須
    ご希望日時 第1希望必須
    第2希望
    第3希望
    ご用件

    個人情報の取扱いについて

    株式会社ウェルズホーム(以下「当社」といいます。)は、ご利用者様からの信頼を第一と考え、ご利用者様個人に関わる情報を正確、かつ機密に取り扱うことは、当社にとって重要な責務であると考えております。そのために、ご利用者様の個人情報に関する「個人情報保護方針」を制定し、個人情報の取り扱い方法について、全従業員及び関連会社への徹底を実践してまいります。その内容は以下の通りです。なお、既に当社で保有し利用させて頂いている個人情報につきましても、本方針に従ってご利用者様の個人情報の取り扱いを実施致します。

    当社について

    名称:株式会社ウェルズホーム
    住所:〒963-8047 福島県郡山市富田東一丁目310番地
    代表者の氏名:代表取締役社長 臼井 泉

    個人情報の取り扱いについて

    (1)個人情報の取得

    当社は個人情報を適法かつ公正な手段により収集致します。ご利用者様に個人情報の提供をお願いする場合は、事前に収集の目的、利用の内容を開示した上で、当社の正当な事業の範囲内で、その目的の達成に必要な限度において、個人情報を収集致します。

    (2)個人情報の利用

    当社がお預かりした個人情報は、個人情報を頂いた方に承諾を得た範囲内又は利用目的に沿った範囲内で利用致します。利用目的については、以下の「利用目的の範囲」の内、当社の正当な事業の範囲内でその目的の達成に必要な事項を利用目的と致します。

    ●利用目的の範囲について

    • 業務上のご連絡をする場合
    • 当社が取り扱う商品及びサービスに関するご案内をする場合
    • ご利用者様からのお問い合せまたはご依頼等への対応をさせて頂く場合
    • その他、ご利用者様に事前にお知らせし、ご同意を頂いた目的の場合

    ●上記目的以外の利用について

    上記以外の目的で、ご利用者様の個人情報を利用する必要が生じた場合には、法令により許される場合を除き、その利用について、ご利用者様の同意を頂くものとします。

    (3)個人情報の第三者提供

    当社は、ご利用者様の同意なしに第三者へご利用者様の個人情報の提供は行いません。但し個人情報に適用される法律その他の規範により、当社が従うべき法令上の義務等の特別な事情がある場合は、この限りではありません。

    (4)個人情報の開示・訂正・利用停止・消去等の手続

    ご利用者様からご提供頂いた個人情報(第三者提供記録を含みます。)に関して、開示、訂正、利用停止、消去を要望される場合は、お問い合わせ先窓口までご請求ください。開示、訂正については、法令に定められている場合を除き、ご利用者様ご本人による請求であることが確認できた場合に限り、合理的な期間内に、ご利用者様の個人情報を開示、訂正致します。利用停止、消去については、法令に定められている事由がある場合で、ご利用者様ご本人による請求であることが確認できた場合に限り、合理的な期間内に、ご利用者様の個人情報を利用停止、消去致します。

    (5)外国における個人情報取り扱いの委託

    当社は、法令等に定める場合を除き、取得した個人情報の取り扱いの全部または一部を外国にある第三者に委託する場合には、あらかじめご本人からその旨の同意をいただいた上で委託いたします。個人情報を外国にある第三者に委託する場合には、ご利用者様に対し、委託先における個人情報の取扱いに関する制度、措置その他お客様の参考になる情報等を提供するとともに、個人情報の委託に係わる基本契約等の必要な契約を締結する等、必要な措置を講じます。但し個人情報に適用される法律その他の規範により、当社が従うべき法令上の義務等の特別な事情がある場合は、この限りではありません。

    個人情報の保護に関する法令・規範の遵守について

    当社は、当社が保有する個人情報に関して適用される個人情報保護関連法令、規範及び個人情報保護委員会のガイドラインを遵守します。また本方針は、日本国の法律、その他規範により判断致します。本方針は、当社の個人情報の取り扱いに関しての基本的な方針を定めるものであり、当社は本方針に則って、個人情報保護法等の法令・規範に基づく個人情報の保護に努めます。

    個人情報の安全管理措置について

    当社は、個人情報への不正アクセス、個人情報の紛失、破壊、改ざん、漏えい等から個人情報を保護し、正確性及び安全性を確保するために管理体制を整備し、適切な安全対策を実施致します。個人情報を取り扱う事務所内への部外者の立ち入りを制限し、当社の個人情報保護に関わる役員・職員等全員に対し教育啓発活動を実施するほか、管理責任者を置き個人情報の適切な管理に努めます。

    CookieとWebビーコンの利用

    当社のWebサイトでは、ご利用者様のアクセス情報を取得するために「Cookie」や「Webビーコン」といった技術を利用しております。これらにより取得した情報はいずれも個人を特定することはできません。
    なお、当社のWebサイトを、お使いのブラウザーにおいてCookieを受け付けない設定や、画像を表示しない設定でご利用いただくことも可能ですが、その場合、Webサイトで提供している機能の一部がご利用できない場合がございます。

    Googleアナリティクスの利用について

    当社のWebサイトでは、Googleアナリティクスを利用することがあります。GoogleアナリティクスはCookieを利用して当社サイトへのアクセス情報を収集します。アクセス情報の収集及び利用方法については、Googleアナリティクスサービス利用規約及びGoogleプライバシーポリシーによって定められています。

    詳細は以下のページをご参照ください。
    https://policies.google.com/technologies/partner-sites?hl=ja

    また、これらはご利用者様の判断で広告表示を停止(オプトアウト)することができます。停止方法については以下のページをご確認ください。
    https://tools.google.com/dlpage/gaoptout?hl=ja

    継続的な改善について

    当社は、個人情報保護への取組みについて、日本国の従うべき法令の変更、取り扱い方法、環境の変化に対応するため、継続的に見直し改善を実施致します。

    Cookie(クッキー)ポリシー

    当社サイトでは、ご利用者様により良いサービスを提供するためにCookie(クッキー)を使用しています。
    当社サイトにおけるCookieの利用目的や使用方法についてご説明します。

    Cookie(クッキー)とは

    Cookie(クッキー)とは、ご利用者様が各Webサイトを閲覧した際にコンピュータやモバイルデバイス内に保存されるファイルのことです。
    当社サイトではご利用者様のニーズやアクセス状況を把握することで、コンテンツやサービスの改善に役立てるため、Cookieを利用しています。
    このCookieを拒否すると、ご利用者様が希望する閲覧動作が正常に機能しない場合がございます。

    Cookieの使用について

    当社サイトでは、主に下記の目的でCookieを使用しています。

    • ご利用者様に適したWebサイトの表示、サービス向上のため
    • ご利用者様が入力されたデータを一時的に管理するため
    • ご利用者様の閲覧状況と統計的な分析・調査のため

    Cookieの削除・無効化について

    ご利用者様によるWebブラウザの操作、あるいは設定変更によって、Cookieは削除・無効化することが可能です。
    Cookieの削除・無効化の方法は各Webブラウザによって異なりますので、詳しくはWebブラウザ提供各社の公式サイトをご覧ください。

    お問い合わせ

    個人情報の取り扱いに関するお問い合わせや苦情については、下記窓口にて受け付けております。

    【個人情報取扱い窓口】
    ≪株式会社ウェルズホーム≫
    〒963-8047 福島県郡山市富田東一丁目310番地
    TEL:024-936-0660 FAX:024-936-0661