光と風を感じて暮らす、カリフォルニアハウス
郡山市

光と風を感じて暮らす、カリフォルニアハウス

ラップ調の外壁にライトブルーのモールを組み合わせた、爽やかなカリフォルニアテイストの外観。やわらかなベージュに映えるブルーがアクセントになり、まるで海外の住宅のような佇まいに仕上がっています。屋根形状もシンプルで、どこから見てもバランスよく整ったデザインです。

郡山市富久山町久保田字下河原
面積(坪数)
94.81m²(28.68坪)

下河原モデルハウス

外観

ラップ調の外壁にライトブルーのモールを組み合わせた、爽やかなカリフォルニアテイストの外観。やわらかなベージュに映えるブルーがアクセントになり、まるで海外の住宅のような佇まいに仕上がっています。屋根形状もシンプルで、どこから見てもバランスよく整ったデザインです。

リビング

吹き抜けが広がる開放感たっぷりのリビング。大きな窓から光が入り、明るさと心地よさを両立した空間になっています。ヘリンボーンのフローリングが上品なアクセントとなり、カリフォルニアらしいラフさと洗練を感じられる内装に。階段下スペースをムダなく活かしたヌックは、ちょっとした作業や読書にぴったりの落ち着ける場所。

ダイニングキッチン

キッチンはダイニングと横並びのレイアウトで、配膳や後片付けがスムーズにできる使い勝手の良いつくり。家事動線をしっかり意識した設計で、料理をしながら家族との距離も自然と近づきます。キッチン奥にはランドリールームがあり、移動を最小限にすることで毎日の家事負担を軽減します。ランドリールームでは「洗う・干す・たたむ・しまう」が一連の流れで完結。

玄関

玄関を開けると、ネイビーの扉が印象的なアクセントとなり、カリフォルニアテイストを感じさせるおしゃれなエントランスに。玄関からは洗面スペースへすぐ行けるため、帰宅後の手洗い動線もスムーズです。さらに、リビング・ランドリールーム・キッチンへ直接アクセスできる便利な動線計画で、家族みんなが快適に過ごせる暮らしをサポートします。

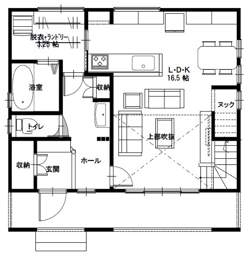
FLOOR PLAN

間取り

POINT

ポイント

MAP

アクセスマップ

来場予約をする

モデルハウスの来場予約をしたい方は、
下記の項目を入力し「送信」をクリックしてください。
担当者より順次回答いたします。
*は必須入力項目です

    お名前必須
    ふりがな必須
    ご住所
    電話番号必須
    メールアドレス必須
    ご希望日時 第1希望必須
    第2希望
    第3希望
    ご用件

    個人情報の取扱いについて

    株式会社ウェルズホーム(以下「当社」といいます。)は、ご利用者様からの信頼を第一と考え、ご利用者様個人に関わる情報を正確、かつ機密に取り扱うことは、当社にとって重要な責務であると考えております。そのために、ご利用者様の個人情報に関する「個人情報保護方針」を制定し、個人情報の取り扱い方法について、全従業員及び関連会社への徹底を実践してまいります。その内容は以下の通りです。なお、既に当社で保有し利用させて頂いている個人情報につきましても、本方針に従ってご利用者様の個人情報の取り扱いを実施致します。

    当社について

    名称:株式会社ウェルズホーム
    住所:〒963-8047 福島県郡山市富田東一丁目310番地
    代表者の氏名:代表取締役社長 臼井 泉

    個人情報の取り扱いについて

    (1)個人情報の取得

    当社は個人情報を適法かつ公正な手段により収集致します。ご利用者様に個人情報の提供をお願いする場合は、事前に収集の目的、利用の内容を開示した上で、当社の正当な事業の範囲内で、その目的の達成に必要な限度において、個人情報を収集致します。

    (2)個人情報の利用

    当社がお預かりした個人情報は、個人情報を頂いた方に承諾を得た範囲内又は利用目的に沿った範囲内で利用致します。利用目的については、以下の「利用目的の範囲」の内、当社の正当な事業の範囲内でその目的の達成に必要な事項を利用目的と致します。

    ●利用目的の範囲について

    • 業務上のご連絡をする場合
    • 当社が取り扱う商品及びサービスに関するご案内をする場合
    • ご利用者様からのお問い合せまたはご依頼等への対応をさせて頂く場合
    • その他、ご利用者様に事前にお知らせし、ご同意を頂いた目的の場合

    ●上記目的以外の利用について

    上記以外の目的で、ご利用者様の個人情報を利用する必要が生じた場合には、法令により許される場合を除き、その利用について、ご利用者様の同意を頂くものとします。

    (3)個人情報の第三者提供

    当社は、ご利用者様の同意なしに第三者へご利用者様の個人情報の提供は行いません。但し個人情報に適用される法律その他の規範により、当社が従うべき法令上の義務等の特別な事情がある場合は、この限りではありません。

    (4)個人情報の開示・訂正・利用停止・消去等の手続

    ご利用者様からご提供頂いた個人情報(第三者提供記録を含みます。)に関して、開示、訂正、利用停止、消去を要望される場合は、お問い合わせ先窓口までご請求ください。開示、訂正については、法令に定められている場合を除き、ご利用者様ご本人による請求であることが確認できた場合に限り、合理的な期間内に、ご利用者様の個人情報を開示、訂正致します。利用停止、消去については、法令に定められている事由がある場合で、ご利用者様ご本人による請求であることが確認できた場合に限り、合理的な期間内に、ご利用者様の個人情報を利用停止、消去致します。

    (5)外国における個人情報取り扱いの委託

    当社は、法令等に定める場合を除き、取得した個人情報の取り扱いの全部または一部を外国にある第三者に委託する場合には、あらかじめご本人からその旨の同意をいただいた上で委託いたします。個人情報を外国にある第三者に委託する場合には、ご利用者様に対し、委託先における個人情報の取扱いに関する制度、措置その他お客様の参考になる情報等を提供するとともに、個人情報の委託に係わる基本契約等の必要な契約を締結する等、必要な措置を講じます。但し個人情報に適用される法律その他の規範により、当社が従うべき法令上の義務等の特別な事情がある場合は、この限りではありません。

    個人情報の保護に関する法令・規範の遵守について

    当社は、当社が保有する個人情報に関して適用される個人情報保護関連法令、規範及び個人情報保護委員会のガイドラインを遵守します。また本方針は、日本国の法律、その他規範により判断致します。本方針は、当社の個人情報の取り扱いに関しての基本的な方針を定めるものであり、当社は本方針に則って、個人情報保護法等の法令・規範に基づく個人情報の保護に努めます。

    個人情報の安全管理措置について

    当社は、個人情報への不正アクセス、個人情報の紛失、破壊、改ざん、漏えい等から個人情報を保護し、正確性及び安全性を確保するために管理体制を整備し、適切な安全対策を実施致します。個人情報を取り扱う事務所内への部外者の立ち入りを制限し、当社の個人情報保護に関わる役員・職員等全員に対し教育啓発活動を実施するほか、管理責任者を置き個人情報の適切な管理に努めます。

    CookieとWebビーコンの利用

    当社のWebサイトでは、ご利用者様のアクセス情報を取得するために「Cookie」や「Webビーコン」といった技術を利用しております。これらにより取得した情報はいずれも個人を特定することはできません。
    なお、当社のWebサイトを、お使いのブラウザーにおいてCookieを受け付けない設定や、画像を表示しない設定でご利用いただくことも可能ですが、その場合、Webサイトで提供している機能の一部がご利用できない場合がございます。

    Googleアナリティクスの利用について

    当社のWebサイトでは、Googleアナリティクスを利用することがあります。GoogleアナリティクスはCookieを利用して当社サイトへのアクセス情報を収集します。アクセス情報の収集及び利用方法については、Googleアナリティクスサービス利用規約及びGoogleプライバシーポリシーによって定められています。

    詳細は以下のページをご参照ください。
    https://policies.google.com/technologies/partner-sites?hl=ja

    また、これらはご利用者様の判断で広告表示を停止(オプトアウト)することができます。停止方法については以下のページをご確認ください。
    https://tools.google.com/dlpage/gaoptout?hl=ja

    継続的な改善について

    当社は、個人情報保護への取組みについて、日本国の従うべき法令の変更、取り扱い方法、環境の変化に対応するため、継続的に見直し改善を実施致します。

    Cookie(クッキー)ポリシー

    当社サイトでは、ご利用者様により良いサービスを提供するためにCookie(クッキー)を使用しています。
    当社サイトにおけるCookieの利用目的や使用方法についてご説明します。

    Cookie(クッキー)とは

    Cookie(クッキー)とは、ご利用者様が各Webサイトを閲覧した際にコンピュータやモバイルデバイス内に保存されるファイルのことです。
    当社サイトではご利用者様のニーズやアクセス状況を把握することで、コンテンツやサービスの改善に役立てるため、Cookieを利用しています。
    このCookieを拒否すると、ご利用者様が希望する閲覧動作が正常に機能しない場合がございます。

    Cookieの使用について

    当社サイトでは、主に下記の目的でCookieを使用しています。

    • ご利用者様に適したWebサイトの表示、サービス向上のため
    • ご利用者様が入力されたデータを一時的に管理するため
    • ご利用者様の閲覧状況と統計的な分析・調査のため

    Cookieの削除・無効化について

    ご利用者様によるWebブラウザの操作、あるいは設定変更によって、Cookieは削除・無効化することが可能です。
    Cookieの削除・無効化の方法は各Webブラウザによって異なりますので、詳しくはWebブラウザ提供各社の公式サイトをご覧ください。

    お問い合わせ

    個人情報の取り扱いに関するお問い合わせや苦情については、下記窓口にて受け付けております。

    【個人情報取扱い窓口】
    ≪株式会社ウェルズホーム≫
    〒963-8047 福島県郡山市富田東一丁目310番地
    TEL:024-936-0660 FAX:024-936-0661